Oglas NovosadskiStanovi-21335

Dvosoban stan na prodaju, 45m2, 168.100€

Šifra oglasa: NovosadskiStanovi-21335
Novi Sad, Novi Sad centar
Centar-Idealan Dvosoban stan 45 m2 u Izgradnji-povraćaj PDV-a-065/385 8880

168.100 €

3.735,56 €/m2

Klikni da pozoveš ili pošalješ poruku
Kontakt telefon
021 310 82 13

Kliknite i ostavite kontakt kako biste saznali kako ovaj stan možete kupiti uz pomoć stambenog kredita:

Detalji oglasa:
Cena:
Kvadratura:
Tip objekta:
Stanje objekta:
Struktura:
Sprat:
Način grejanja:
Uknjiženost:
Dodatno:
168.100 €
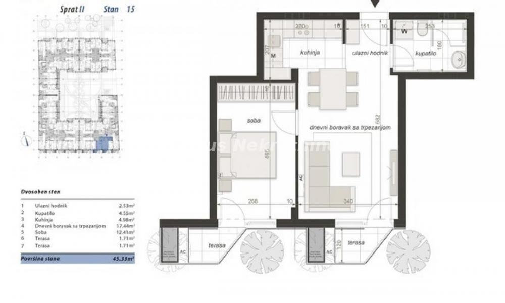
45 m2
Stan
Izvorno
2.0
2/4
Centralno
Uknjiženo
Terasa, lift
Oglas ažuriran: 21.09.2024 (12:46)
Oglas proveren: 18.12.2025 (12:25)

Opis oglasa:
Šifra oglasa:
NovosadskiStanovi-21335
Kontakt: 021 310 82 13
*DIREKTNA PRODAJA*...Prodajemo u Centru grada Novog Sada Fantastičan Dvosoban stan 45 m2 u IZGRADNJI na Top-Top Lokaciji...Stan se nalazi se na Drugom Spratu ulične orijentacije,svetao je i funkcionalan,Ističemo kvalitetnu izgradnju i ugradnju,hrastovi parketi,italijanske pločice,pvc stolarija,sigurnosna vrata,stan ima i dve Lepe Terase...grejanje je centralno gradsko...useljenje Novembar 2026...mogućnost povrata PDV-a....MOŽE KUPOVINA PREKO STAMBENOG KREDITA...Posebno izdvajamo osim lokacije blizinu škole,vrtića,Centra grada i stanica Gradskog prevoza koji saobraćaju ka svim delovima grada...OBAVEZNO POGLEDAJTE... više informacija na www.status-nekretnine.com A57-NovosadskiStanovi-21335 (STATUS NEKRETNINE D.O.O UPISAN U REGISTAR POSREDNIKA POD BR.182) ili na tel. 021 310 82 13...Mišo Licenca 2465
Kontakt: 021 310 82 13
Klikni da pozoveš ili pošalješ poruku
Kontakt telefon
021 310 82 13
Prijavi grešku u oglasu
Zakaži gledanje stana
Zakaži gledanje stana
Pitaj oglašivača
Selektuj šta te interesuje:
Pošalji pitanje

Podeli stan sa prijateljima
Kopiraj link

Kontaktiraj oglašivača


Slični oglasi: