Oglas NovosadskiStanovi-20926

Trosoban stan na prodaju, 74m2, 156.350€

Šifra oglasa: NovosadskiStanovi-20926
Novi Sad, Nova Detelinara
Evropski bulevar-*Naša Preporuka*-Fantastičan Trosoban Dupleks 74 m2-povrat Pdv-065/385 8880

156.350 €

2.112,84 €/m2

Klikni da pozoveš ili pošalješ poruku
Kontakt telefon
021 310 82 13

Kliknite i ostavite kontakt kako biste saznali kako ovaj stan možete kupiti uz pomoć stambenog kredita:

Detalji oglasa:
Cena:
Kvadratura:
Tip objekta:
Stanje objekta:
Struktura:
Sprat:
Način grejanja:
Uknjiženost:
Dodatno:
156.350 €
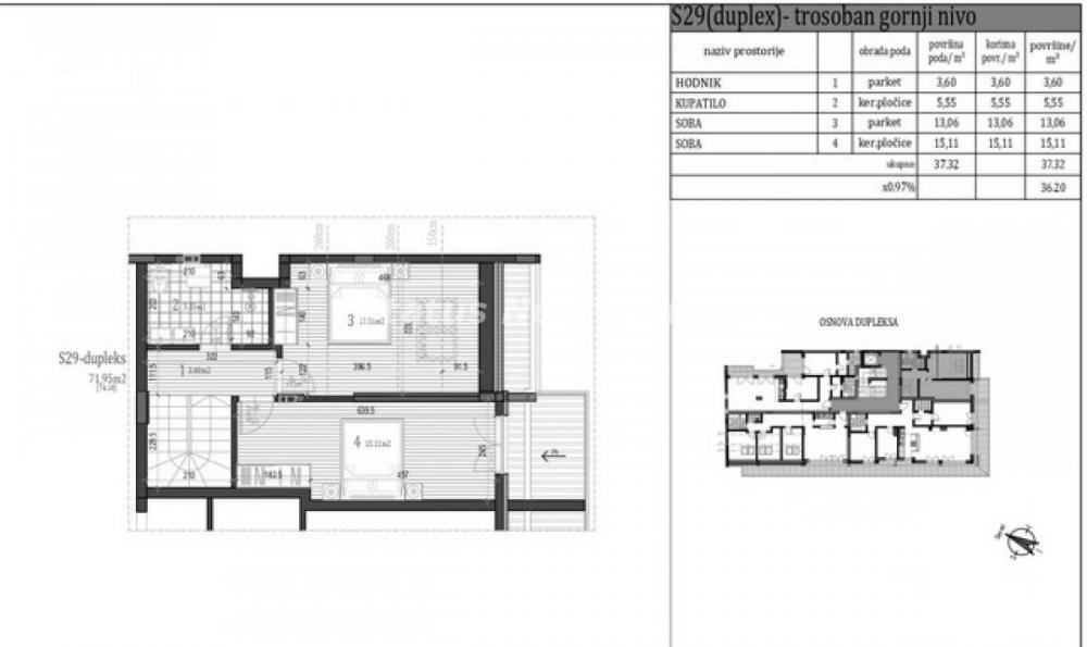
74 m2
Stan
Izvorno
3.0
5/5
Centralno
Uknjiženo
Terasa, lift
Oglas ažuriran: 19.06.2025 (14:44)
Oglas proveren: 14.12.2025 (13:25)

Opis oglasa:
Šifra oglasa:
NovosadskiStanovi-20926
Kontakt: 021 310 82 13
*STAN BEZ KOMŠIJA SA SPRATA*- Evropski bulevar-Fantastičan Trosoban Dupleks 74 m2 sa Lepom Terasom-021 310 82 13... Prodajemo na Bulevaru Evrope Izuzetan Trosoban stan 74 m2 u Novogradnji na TOP-TOP LOKACIJI...Stan se nalazi na Petom spratu zgrade,svetao je i funkcionalan,dvorišno je orijentisan sa lepim Pogledom...ističe se kvalitetna ugradnja,Italijanska keramika,Pvc stolarija...Grejanje je Centralno...Mogućnost Kupovine preko Stambenog Kredita i Povrata PDV-a...useljenje Jun 2025...Posebno izdvajamo blizinu škole,vrtića,Sajma,Parka i Gradskog prevoza... OBAVEZNO POGLEDAJTE... više informacija na www.status-nekretnine.com A57-NovosadskiStanovi-20926 (STATUS NEKRETNINE D.O.O UPISAN U REG. POSREDNIKA POD BR.182) ili na tel. 021 310 82 13...Mišo Licenca broj 2465
Kontakt: 021 310 82 13
Klikni da pozoveš ili pošalješ poruku
Kontakt telefon
021 310 82 13
Prijavi grešku u oglasu
Zakaži gledanje stana
Zakaži gledanje stana
Pitaj oglašivača
Selektuj šta te interesuje:
Pošalji pitanje

Podeli stan sa prijateljima
Kopiraj link

Kontaktiraj oglašivača


Slični oglasi: