Oglas NovosadskiStanovi-1099049

Petosoban stan na prodaju, 143m2, 353.500€

Šifra oglasa: NovosadskiStanovi-1099049
Novi Sad, Telep
Stan,NOVI SAD,TELEP,kv: 143.00, € 353500, ID: NovosadskiStanovi-1099049

353.500 €

2.472,03 €/m2

Klikni da pozoveš ili pošalješ poruku
Kontakt telefon
021 310 62 18

Kliknite i ostavite kontakt kako biste saznali kako ovaj stan možete kupiti uz pomoć stambenog kredita:

Detalji oglasa:
Cena:
Kvadratura:
Tip objekta:
Stanje objekta:
Struktura:
Sprat:
Način grejanja:
Uknjiženost:
Dodatno:
353.500 €
143 m2
Stan
Izvorno
5.0
2
-
Uknjiženo
Parking
Oglas ažuriran: 01.04.2025 (16:18)
Oglas proveren: 15.02.2026 (20:25)

Opis oglasa:
Šifra oglasa:
NovosadskiStanovi-1099049
Kontakt: 021 310 62 18
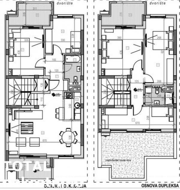
Agencijska oznaka NovosadskiStanovi-1099049 - Prodaje se petosoban stan u dva nivoa, u izgradnji, sa PDV-om, u urbanoj vili na Telepu. Stan je u mirnoj ulici ali lokacijski odličan zbog blizine svih sadržaja neophodnih za život. Keramičke pločice većih dimenzija (120cm x 120cm, 60cm x 60cm) su odabrane pažljivo iz asortimana prestižnog italijanskog i španskog proizvođača. Hrastov parket - Tara concept. Sanitarije Hansgrohe, Vileroy Bosch. Kombinovana PVC - aluminijumska antracit stolarija sa troslojnim staklom. Svaka stambena jedinica je posebna celina u smislu grejanja. Bosch kondenzacioni gasni kotao priprema zagrevanje tople vode uz minimalnu potrošnju energije i maksimalnu uštedu. Midea invertorski klima uredjaj. Korišćen je najkvalitetniji Klima blok na tržištu, što omogućava maksimalne rezultate u smislu termičke i zvučne izolacije Elektronski podizači roletni. Klupice na prozorima i na terasama urađene od mermera. Sigurnosni sistem kamera. Mogućnost kupovine garaže ili parking mesta u dvorištu. GRATIS KROVNA TERASA OD 30M2. BEZ KROVNIH PROZORA I KOSINA. ZA VIŠE INFORMACIJE POZVATI SANDRA 021 310 62 18
Kontakt: 021 310 62 18
Klikni da pozoveš ili pošalješ poruku
Kontakt telefon
021 310 62 18
Prijavi grešku u oglasu
Zakaži gledanje stana
Zakaži gledanje stana
Pitaj oglašivača
Selektuj šta te interesuje:
Pošalji pitanje

Podeli stan sa prijateljima
Kopiraj link

Kontaktiraj oglašivača
Slični oglasi: