Oglas NovosadskiStanovi-1030660

Dvosoban stan na prodaju, 78m2, 164.000€

Šifra oglasa: NovosadskiStanovi-1030660
Novi Sad, Telep
Stan,NOVI SAD,TELEP,kv: 78, € 164000, ID: NovosadskiStanovi-1030660

164.000 €

2.102,56 €/m2

Klikni da pozoveš ili pošalješ poruku
Kontakt telefon
021 310 62 17

Kliknite i ostavite kontakt kako biste saznali kako ovaj stan možete kupiti uz pomoć stambenog kredita:

Detalji oglasa:
Cena:
Kvadratura:
Tip objekta:
Stanje objekta:
Struktura:
Sprat:
Način grejanja:
Uknjiženost:
Dodatno:
164.000 €
78 m2
Stan
Izvorno
2.0
4
-
Uknjiženo
Terasa, lift
Oglas ažuriran: 30.06.2025 (17:46)
Oglas proveren: 21.01.2026 (19:25)

Opis oglasa:
Šifra oglasa:
NovosadskiStanovi-1030660
Kontakt: 021 310 62 17
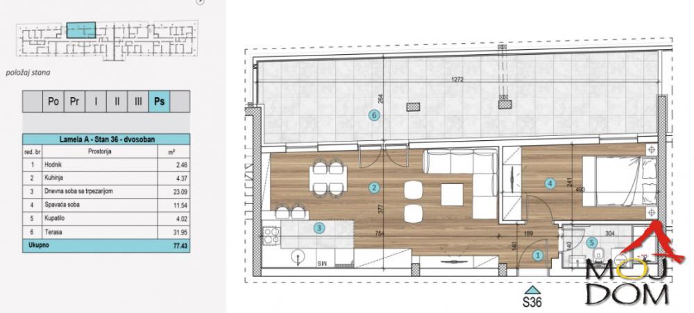
JUŽNI TELEP – Prostran dvosoban stan sa velikom terasom i odličnim rasporedom Na prodaju je izuzetno komforan dvosoban stan smešten u srcu Južnog Telepa, jedne od najdinamičnijih i najbrže rastućih lokacija u Novom Sadu. Ova nekretnina idealna je za one koji žele da spoje mirno porodično okruženje sa urbanim načinom života i dostupnošću svih važnih sadržaja. Stan se odlikuje savremenim rasporedom prostorija koji uključuje prostran dnevni boravak povezan sa kuhinjom i trpezarijom, udobnu spavaću sobu, moderno opremljeno kupatilo i izuzetno lepu, komfornu terasu koja predstavlja pravi dragulj ove nekretnine – savršeno mesto za odmor, uživanje i druženje. Zgrada je izgrađena od strane renomiranog investitora sa dokazanim kvalitetom gradnje i posvećenošću detaljima, što garantuje dugotrajan kvalitet i sigurnost. U cenu stana je uračunat povraćaj PDV-a za kupce koji ispunjavaju uslove, što dodatno doprinosi povoljnosti kupovine. Lokacija nudi sve što je potrebno za kvalitetan porodični život – u blizini se nalaze škole, vrtići, prodavnice, igrališta i gradski prevoz. Za više informacija i zakazivanje obilaska, kontaktirajte: 021 310 62 17 Agencijska šifra: NovosadskiStanovi-1030658 Moj Dom nekretnine, Novi Sad – Reg. br. 174(Moj Dom nekretnine,Novi Sad,Reg.br.174)
Kontakt: 021 310 62 17
Klikni da pozoveš ili pošalješ poruku
Kontakt telefon
021 310 62 17
Prijavi grešku u oglasu
Zakaži gledanje stana
Zakaži gledanje stana
Pitaj oglašivača
Selektuj šta te interesuje:
Pošalji pitanje

Podeli stan sa prijateljima
Kopiraj link

Kontaktiraj oglašivača


Slični oglasi: