Oglas NovosadskiStanovi-1058120

Troiposoban stan na prodaju, 106m2, 251.500€

Šifra oglasa: NovosadskiStanovi-1058120
Novi Sad, Telep
Stan,NOVI SAD,TELEP,kv: 106.00, € 251500, ID: NovosadskiStanovi-1058120

251.500 €

2.372,64 €/m2

Klikni da pozoveš ili pošalješ poruku
Kontakt telefon
021 310 82 14

Kliknite i ostavite kontakt kako biste saznali kako ovaj stan možete kupiti uz pomoć stambenog kredita:

Detalji oglasa:
Cena:
Kvadratura:
Tip objekta:
Stanje objekta:
Struktura:
Sprat:
Način grejanja:
Uknjiženost:
Dodatno:
251.500 €
106 m2
Stan
Izvorno
3.5
3
Gas
Uknjiženo
Terasa, lift
Oglas ažuriran: 12.11.2025 (15:25)
Oglas proveren: 16.12.2025 (16:25)

Opis oglasa:
Šifra oglasa:
NovosadskiStanovi-1058120
Kontakt: 021 310 82 14
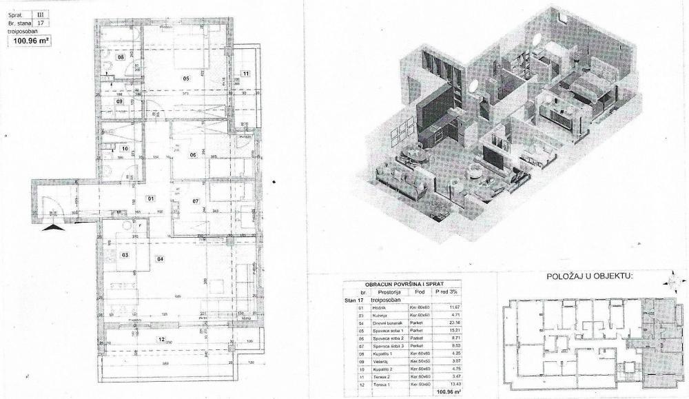
Novi Sad - Telep. Na Lepoj, mirnoj porodičnoj lokaciji u blizini osnovne škole i vrtića nudimo novu zgradu u izgradnji. Stanovi raznih struktura izuzetno funkcionalnih rasporeda od 35 - 100m2. Ekonomični sistem grejanja na gas, kvalitetna gradnja.Kontakt Milan 021 310 82 14 , Bomil nekretnine Reg253Kontakt telefon 021 310 82 14 Milan Pulai, Bomil nekretnine (Bomil nekretnine, Novi Sad, Reg. br. 251)
Kontakt: 021 310 82 14
Klikni da pozoveš ili pošalješ poruku
Kontakt telefon
021 310 82 14
Prijavi grešku u oglasu
Zakaži gledanje stana
Zakaži gledanje stana
Pitaj oglašivača
Selektuj šta te interesuje:
Pošalji pitanje

Podeli stan sa prijateljima
Kopiraj link

Kontaktiraj oglašivača


Slični oglasi: