Oglas NovosadskiStanovi-22087

Četvorosoban stan na prodaju, 85m2, 231.100€

Šifra oglasa: NovosadskiStanovi-22087
Novi Sad, Telep
Severni Telep-Lep Četvorosoban stan 85 m2 u Pogodnom kraju-povrat PDV-065/385 8880

231.100 €

2.718,82 €/m2

Klikni da pozoveš ili pošalješ poruku
Kontakt telefon
021 310 82 13

Kliknite i ostavite kontakt kako biste saznali kako ovaj stan možete kupiti uz pomoć stambenog kredita:

Detalji oglasa:
Cena:
Kvadratura:
Tip objekta:
Stanje objekta:
Struktura:
Sprat:
Način grejanja:
Uknjiženost:
Dodatno:
231.100 €
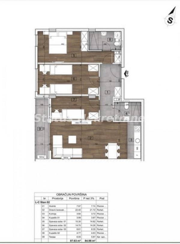
85 m2
Stan
Izvorno
4.0
1/8
Centralno
Nije uknjiženo
Terasa, lift
Oglas ažuriran: 16.10.2025 (15:19)
Oglas proveren: 16.12.2025 (21:26)

Opis oglasa:
Šifra oglasa:
NovosadskiStanovi-22087
Kontakt: 021 310 82 13
Prodajemo Lep Četvorosoban stan 85 m2 u Novogradnji na TOP-TOP LOKACIJI...stan se nalazi na Prvom spratu zgrade, dvorišne je orijentacije,osunčan tokom celog dana, Funkcionalan što doprinosi vašem komforu i udobnosti,ističemo kvalitetnu ugradnju modernih Inovacija,Domaća Keramika, Hrastov Parket,Medijapan Stolarija sa petokomornim PVC profilom,Kupatilske sanitarije I klase,sigurnosna vrata i zvučna Izolacija... Klima uređaj,Digitalni interfon,Video nadzor... Energetski efikasna rešenja dodatno smanjuju troškove grejanja i hlađenja, pružajući optimalan komfor tokom cele godine... Grejanje je centralno gradsko...useljenje Decembar 2026...mogućnost kupovine Garaže i povrata PDV... Posebno izdvajamo blizinu škole,vrtića,Tržnog centra,Pošte.Apoteke,DZ,Gradskog prevoza... više informacija na tel. 021 310 82 13...Mišo Licenca broj 2465 ili na www.status-nekretnine.com A57-NovosadskiStanovi-22087 (STATUS NEKRETNINE D.O.O UPISAN U REGISTAR POSREDNIKA POD BR.182)
Kontakt: 021 310 82 13
Klikni da pozoveš ili pošalješ poruku
Kontakt telefon
021 310 82 13
Prijavi grešku u oglasu
Zakaži gledanje stana
Zakaži gledanje stana
Pitaj oglašivača
Selektuj šta te interesuje:
Pošalji pitanje

Podeli stan sa prijateljima
Kopiraj link

Kontaktiraj oglašivača

Povezane pretrage:

Slični oglasi: