Oglas NovosadskiStanovi-1063385

Trosoban stan na prodaju, 78m2, 187.200€

Šifra oglasa: NovosadskiStanovi-1063385
Novi Sad, Liman 4
Stan,NOVI SAD,LIMAN 4,kv: 78.00, € 187200, ID: NovosadskiStanovi-1063385

187.200 €

2.400,00 €/m2

Klikni da pozoveš ili pošalješ poruku
Kontakt telefon
021 310 62 19

Kliknite i ostavite kontakt kako biste saznali kako ovaj stan možete kupiti uz pomoć stambenog kredita:

Detalji oglasa:
Cena:
Kvadratura:
Tip objekta:
Stanje objekta:
Struktura:
Način grejanja:
Uknjiženost:
Dodatno:
187.200 €
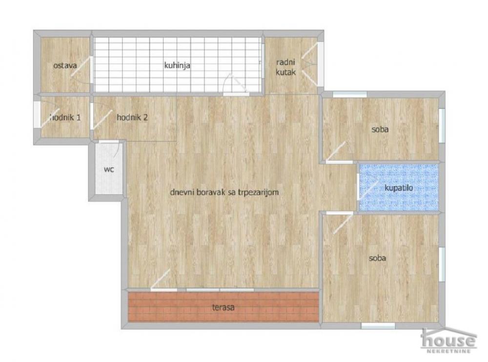
78 m2
Stan
Izvorno
3.0
-
Uknjiženo
Terasa, lift
Oglas ažuriran: 28.10.2025 (15:46)
Oglas proveren: 18.01.2026 (12:25)

Opis oglasa:
Šifra oglasa:
NovosadskiStanovi-1063385
Kontakt: 021 310 62 19
LIMAN IV, RENOVIRAN TROSOBAN STAN +++Agencijska oznaka NovosadskiStanovi-1063385. CENA 187.200e + agencijska provizija od 3%. Prodaje se odlično renoviran trosoban stan na Bulevaru Cara lazara. Stan je visoke spratnosti pa se iz stana pruža prelep pogled na Frušku goru. Stanu je pre šest godina kompletno renoviran . Odmah je useljiv po ispalati . U ceni je  kompletna kuhinja i ugradni garderoberi. Za više informacija pozvati na 021 310 62 19 Mila
Kontakt: 021 310 62 19
Klikni da pozoveš ili pošalješ poruku
Kontakt telefon
021 310 62 19
Prijavi grešku u oglasu
Zakaži gledanje stana
Zakaži gledanje stana
Pitaj oglašivača
Selektuj šta te interesuje:
Pošalji pitanje

Podeli stan sa prijateljima
Kopiraj link

Kontaktiraj oglašivača


Slični oglasi: