Oglas NovosadskiStanovi-1031533

Četvorosoban stan na prodaju, 170m2, 481.150€

Šifra oglasa: NovosadskiStanovi-1031533
Novi Sad, Novo naselje
Stan,NOVI SAD,NOVO NASELJE,kv: 170, € 481150, ID: NovosadskiStanovi-1031533

481.150 €

2.830,29 €/m2

Klikni da pozoveš ili pošalješ poruku
Kontakt telefon
021 310 62 17

Kliknite i ostavite kontakt kako biste saznali kako ovaj stan možete kupiti uz pomoć stambenog kredita:

Detalji oglasa:
Cena:
Kvadratura:
Tip objekta:
Stanje objekta:
Struktura:
Sprat:
Način grejanja:
Uknjiženost:
Dodatno:
481.150 €
170 m2
Stan
Izvorno
4.0
4
-
Uknjiženo
Terasa, parking, lift
Oglas ažuriran: 10.12.2025 (15:42)
Oglas proveren: 31.01.2026 (05:25)

Opis oglasa:
Šifra oglasa:
NovosadskiStanovi-1031533
Kontakt: 021 310 62 17
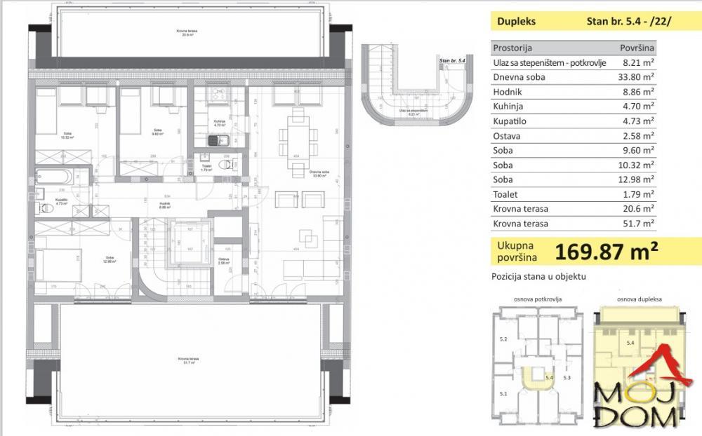
Na prodaju je moderan dupleks stan u izgradnji, smešten na idealnoj lokaciji na granici Novog Naselja i Satelita. Projekat je osmišljen tako da pruži visok nivo komfora i funkcionalnosti, uz predviđeni rok završetka radova do proleća 2026. godine. Okolina je izuzetno praktična za svakodnevni život, jer se u neposrednoj blizini nalaze prodavnice, škole, apoteke, drogerije i svi važni sadržaji koji ovu lokaciju čine izuzetno pogodnom za porodice, zaposlene i sve koji žele praktičan i miran životni ambijent. Grejanje je predviđeno na gas sa sistemom naplate isključivo po potrošnji, što značajno utiče na uštedu i obezbeđuje niske mesečne troškove održavanja. Uz stan postoji mogućnost kupovine parking mesta, što dodatno doprinosi udobnosti i jednostavnosti svakodnevnog funkcionisanja. Ovo je prilika da obezbedite kvalitetan, savremen i dobro pozicioniran dom u mirnom okruženju, a istovremeno u neposrednoj blizini svih ključnih gradskih sadržaja. šifra: NovosadskiStanovi-1031533 Kontakt - 021 310 62 17 Moj Dom nekretnine, Novi Sad (Reg. br. 174) For sale is a modern duplex apartment under construction, located in an excellent position on the border of Novo Naselje and Satelit. The project is designed to provide a high level of comfort and functionality, with the planned completion date set for spring 2026. The surroundings are extremely convenient for everyday life, with shops, schools, pharmacies, drugstores, and all essential amenities situated nearby, making this location ideal for families, professionals, and anyone seeking a practical and peaceful living environment. Heating is planned to be gas-based, with billing exclusively according to consumption, which ensures significant savings and low monthly maintenance costs. There is also the possibility of purchasing a parking space with the apartment, further enhancing comfort and practicality. This is an opportunity to secure a high-quality, contemporary, and well-positioned home in a quiet setting, while still being within close re
Kontakt: 021 310 62 17
Klikni da pozoveš ili pošalješ poruku
Kontakt telefon
021 310 62 17
Prijavi grešku u oglasu
Zakaži gledanje stana
Zakaži gledanje stana
Pitaj oglašivača
Selektuj šta te interesuje:
Pošalji pitanje

Podeli stan sa prijateljima
Kopiraj link

Kontaktiraj oglašivača

Povezane pretrage:

Slični oglasi: