Oglas NovosadskiStanovi-387

Dvosoban stan na prodaju, 40m2, 90.000€

Šifra oglasa: NovosadskiStanovi-387
Novi Sad, Grbavica
Dvosoban stan na Grbavici

90.000 €

2.250,00 €/m2

Klikni da pozoveš ili pošalješ poruku
Kontakt telefon
Klikni na dugme da vidis broj
063513314

Kliknite i ostavite kontakt kako biste saznali kako ovaj stan možete kupiti uz pomoć stambenog kredita:

Detalji oglasa:
Cena:
Kvadratura:
Tip objekta:
Stanje objekta:
Struktura:
Sprat:
Način grejanja:
Uknjiženost:
Dodatno:
90.000 €
40 m2
Stan
Za renoviranje
2.0
3/5
Centralno
Uknjiženo
Terasa
Oglas ažuriran: 17.12.2025 (10:09)
Oglas proveren: 18.12.2025 (17:25)

Opis oglasa:
Šifra oglasa:
NovosadskiStanovi-387
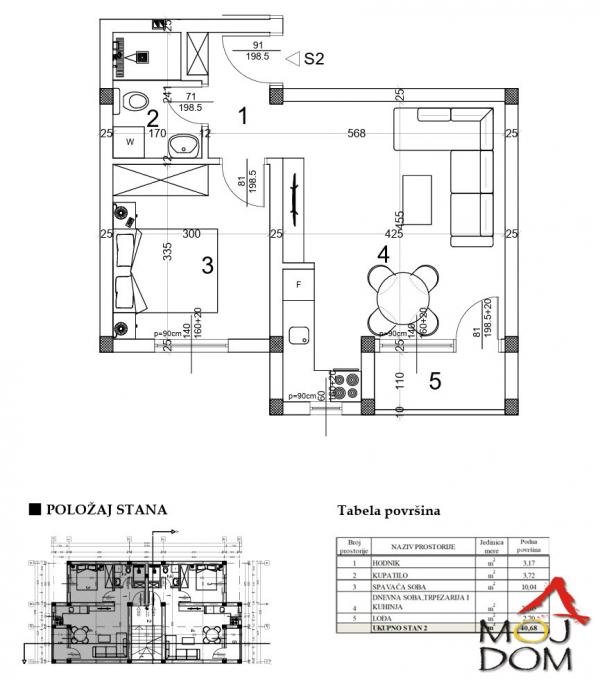
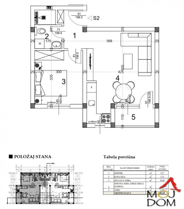
Na prodaju dvosoban stan, 40 m2, na trećem spratu u zgradi bez lifta, u ulici Vere Pavlović. Nepokretnost je u izvornom stanju, potrebno renoviranje. Strukturu stana čine ulazni hodnik, zasebna kuhinja sa ostavom, dnevna soba, spavaća soba, kupatilo i terasa na koju se izlazi iz kuhinje. U podrumskom delu zgrade stan ima pripadajuću prostoriju. Dvorišno je orijentisan, u blizini svih sadržaja potrebnih za udoban život. Uz stan je moguće kupiti i uknjiženu garažu u dvorišnom delu zgrade ( nije uslov ). Na cenu se dodaje posrednička naknada 3%.
Klikni da pozoveš ili pošalješ poruku
Kontakt telefon
Klikni na dugme da vidis broj
063513314
Prijavi grešku u oglasu
Zakaži gledanje stana
Zakaži gledanje stana
Pitaj oglašivača
Selektuj šta te interesuje:
Pošalji pitanje

Podeli stan sa prijateljima
Kopiraj link

Kontaktiraj oglašivača
SALGOR NEKRETNINE - profilna slika
Klikni na *** za prikaz broja telefona
063513314

Klikni na *** za prikaz broja telefona
0637512746

Broj u registru: 1639


Slični oglasi: