Oglas NovosadskiStanovi-1059233

Trosoban stan na prodaju, 68m2, 217.000€

Šifra oglasa: NovosadskiStanovi-1059233
Novi Sad, Novi Sad centar
Stan,NOVI SAD,CENTAR,kv: 68.00, € 217000, ID: NovosadskiStanovi-1059233

217.000 €

3.191,18 €/m2

Klikni da pozoveš ili pošalješ poruku
Kontakt telefon
021 310 82 14

Kliknite i ostavite kontakt kako biste saznali kako ovaj stan možete kupiti uz pomoć stambenog kredita:

Detalji oglasa:
Cena:
Kvadratura:
Tip objekta:
Stanje objekta:
Struktura:
Sprat:
Način grejanja:
Uknjiženost:
Dodatno:
217.000 €
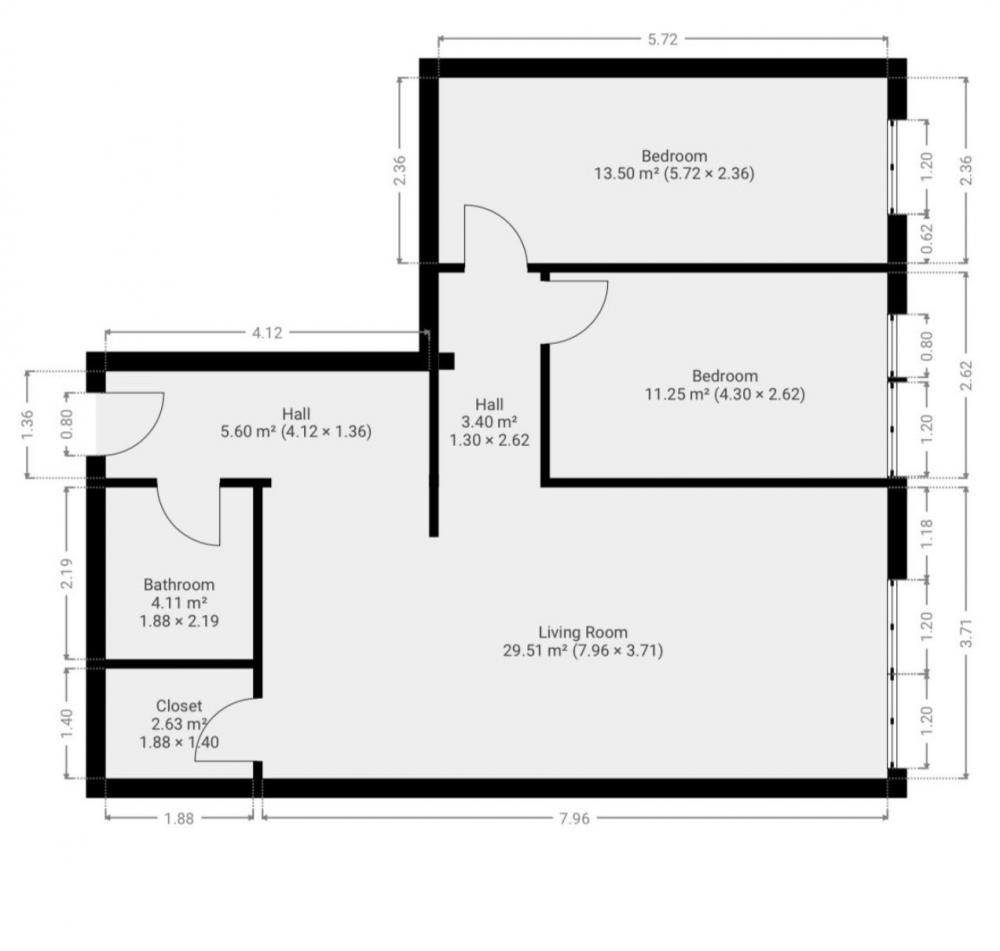
68 m2
Stan
Izvorno
3.0
2
Centralno
Uknjiženo
Terasa
Oglas ažuriran: 12.03.2026 (15:25)
Oglas proveren: 17.03.2026 (01:25)

Opis oglasa:
Šifra oglasa:
NovosadskiStanovi-1059233
Kontakt: 021 310 82 14
Novi Sad, najuži centar grada , prodaje se noviji ali dodatno renoviran stan, lux, svetao trosoban stan odličnog rasporeda. Izuzetna nekretnina na prestižnoj lokaciji sa jedinstvenim pogledom na SNPozorište i Katedralu . Odlična investicija kako za život tako i izdavanje na mesečnom ili dnevnom nivou.  (Bomil nekretnine, Novi Sad, Reg. br. 251
Kontakt: 021 310 82 14
Klikni da pozoveš ili pošalješ poruku
Kontakt telefon
021 310 82 14
Prijavi grešku u oglasu
Zakaži gledanje stana
Zakaži gledanje stana
Pitaj oglašivača
Selektuj šta te interesuje:
Pošalji pitanje

Podeli stan sa prijateljima
Kopiraj link

Kontaktiraj oglašivača


Slični oglasi: