Oglas NovosadskiStanovi-2386

Jednoiposoban stan na prodaju, 40m2, 90.640€

Šifra oglasa: NovosadskiStanovi-2386
Novi Sad, Adice
Jednoiposoban stan 40m u izgradnji na Adicama

90.640 €

2.266,00 €/m2

Klikni da pozoveš ili pošalješ poruku
Kontakt telefon
Klikni na dugme da vidis broj
062518545

Kliknite i ostavite kontakt kako biste saznali kako ovaj stan možete kupiti uz pomoć stambenog kredita:

Detalji oglasa:
Cena:
Kvadratura:
Tip objekta:
Stanje objekta:
Struktura:
Sprat:
Način grejanja:
Uknjiženost:
Dodatno:
90.640 €
40 m2
Stan
Izvorno
1.5
1/2
Gas
Nije uknjiženo
Terasa, parking
Oglas ažuriran: 30.03.2026 (14:15)
Oglas proveren: 01.04.2026 (19:25)

Opis oglasa:
Šifra oglasa:
NovosadskiStanovi-2386
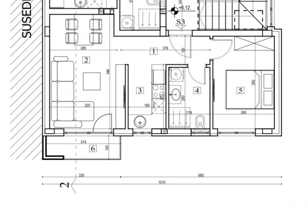
Jednoiposoban stan 40m u izgradnji na Adicama Lokacija: Adice (Srbija, Novi Sad, Novi Sad) Ulica i broj: Adice Sobnost: Jednoiposoban Kvadratura: 40m2 Stanje objekta: U izgradnji Grejanje: Gas Nivo u zgradi: 1. sprat Dodatne informacije Terasa, Internet, Satelitska, kablovska TV, Klima Tekst oglasa 062518545 062518545 Oglašavamo prodaju stana 40m u izgradnji na Adicama u Novom Sadu, stan se nalazi na I spratu zgrade. Stan se sastoji od dnevnog boravka sa trpezarijom, kuhinja, spavaća soba, kupatilo i terasa. Stan poseduje svoje parking mesto. Krajem godine je useljenje. Za sve dodatne informacije pozovite naše agente 062518545, 062518545 ili dođite do nas Svetozara Miletića 51.
Klikni da pozoveš ili pošalješ poruku
Kontakt telefon
Klikni na dugme da vidis broj
062518545
Prijavi grešku u oglasu
Zakaži gledanje stana
Zakaži gledanje stana
Pitaj oglašivača
Selektuj šta te interesuje:
Pošalji pitanje

Podeli stan sa prijateljima
Kopiraj link

Kontaktiraj oglašivača
Bombyx - profilna slika
Klikni na *** za prikaz broja telefona
062518545

Klikni na *** za prikaz broja telefona
063518546

Broj u registru: 217


Slični oglasi: